Lokal na wynajem Bielsko-Biała, Wapienica

202.00 m²
25,00 zł/m2
2 piętro
NBK-LW-2946

5 050 zł

Lokal na wynajem
Oferta specjalna

Szczegóły oferty

Symbol oferty NBK-LW-2946
Powierzchnia 202,00 m²
Rodzaj budynku Obiekt handlowo-usługowo-biurowy
Opłaty wg liczników prąd, woda
Piętro 2
Liczba pięter w budynku 2
Stan lokalu Do wprowadzenia
Typ kaucji trzymiesięczna
Okna nowe PCV
Rodzaj lokalu jednopoziomowy
Przeznaczenie lokalu biurowo-magazynowy, biurowy, handlowo-usługowy, handlowy, usługowy
Dojazd asfalt
Ogrzewanie miejskie
Możliwość parkowania w pobliżu
Podłogi wykładzina
Katarzyna Kierznowska

Katarzyna Kierznowska

Manager
Nr licencji: 7134

Napisz wiadomość 101 Ofert

Opis nieruchomości

BIELSKO-BIAŁA, WAPIENICA
Niezależne lokale biurowe.

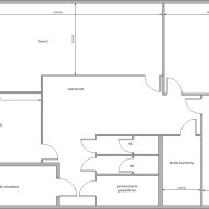
Proponuję do wynajęcia lokal biurowy o łącznej powierzchni 202m2 położony na drugim piętrze w kompleksie handlowo-biurowo-magazynowym. Lokal składa się z:
- trzech pomieszczeń biurowych o powierzchni : 20m2, 51m2, 29m2
- sali konferencyjnej
- recepcji
- kuchni z pełnym wyposażeniem - zmywarka, lodówka
- WC męski i damski
- serwerownia / magazynek
Idealnie nadaje się na biuro, przedstawicielstwo firmy. Teren zagospodarowany, plac ogrodzony i zamykany z parkingiem. Całość dozorowana całodobowo i monitorowana. Niezależne wejście przez osobną klatkę wejściową.
 

Opis pomieszczeń: do adaptacji. Na ścianach gładzie gipsowe, na podłogach wykładzina dywanowa, sufity podwieszane. W każdym z pomieszczeń klimatyzacja. Obiekt posiada doprowadzone łącze - światłowód, linia telefoniczna. Nowe okna PCV. Ogrzewanie centralne - Therma.

Opłaty: czynsz najmu 25zł/m2 netto + media wg. zużycia. Kaucja zwrotna: trzymiesięczna.

Dedykowane miejsce parkingowe płatne 200 zł/samochód netto miesięcznie.

Powyższy opis nie stanowi oferty handlowej w rozumieniu art.66 KC, a dane w nim zawarte mają jedynie charakter informacyjny.

Manager

Proszę wprowadzić poprawne imię i nazwisko
Proszę wprowadzić poprawny numer telefonu
Proszę wprowadzić poprawny adres e-mail
Proszę zaznaczyć wymagane zgody
Rozwiąż równanie:
30 6
Niepoprawny wynik